Uzun bir aradan sonra tekrar merhaba, Geçen 1 ay boyunca araçtaki klima bakımını yaptırdım. Bozuk pervaneleri değiştirdim. alttan önden arkaya klimaya geçen kabloda ezilme varmış.. bu onarıldı.. Uzaktan kumanda çalışmıyordu, temassızlık varmış. Bunu da düzelttirdim.. Genel elektrik bakımı yapıldı.. Tabii elektrik bakımı yapıldı klima artık çalışıyor.. Aracı alıp klimayıda açıp buzgibi bir ortamda bakımdan döndüm.. 24 saat sonra bir baktım.. Akü bitmiş..

Akü eskiydi, değiştirecektim zaten ama bu kadar da çabuk bitmesini beklemiyorum.. Büyük ihtimalle bir yede kaçak var.. Bu kapanma öncesi olduğundan artık bayram sonrasında tekrar elektrikçiye gideceğim, aküyüde artık yenileyeceğim.. Şu an zaten araçla bir yere gidemiyorum..
Alımlara şu şekilde devam ettim..
34-Victron Energy MPPT 250/70 Tr SmartSolar Solar Şarj Kontrol Cihazı,
35-Motip Universal Akrilik Sprey Astar + Motip Gri Pütür Sprey 3 Adet
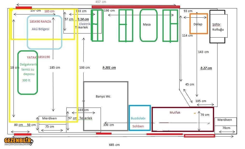
36-BRS 300 LT beyaz ve Lacivert Temiz ve Gri Dalgakıranlı Su Deposu
37- Dayson Darbe Koruyucu Pütür 1 LT, Gri, 10 adet (Aracı içten temizledikten sonra tüm metal aksama pütür atacağım.. Bendeki sprey boya tabancası kullanılır mı bilmiyorum. Önce onu deneyeceğim.. Eğer işe yaramazsa boyacıya gidip kompresörle püskürtüreceğim..)
38- Araç İçi Navigasyon Telefon Tutacağı Torpido Teleskopik Vantuzlu. (telefon sürekli yolda düşüyor.. Koyacak yer bulamadım..

Bu yüzden ihtiyac listesine ekleyip aldım..)
39- Craft Sosis Tabancası
40- SİBAX WS60 Sosis oto cam silikonu (camların silijkonları içten nerdeyse sıfırlanmış, söktükçe camların durumunu görünce cam silikonu almaya karar verdim.. )
41- 110x80 Karavan Duş teknesi,
42-Oto Cam Filmi 50 Cm x 6 Metre Tüm Tonlar Ev, RENK: %15
Canlarım alt kısımları zaten oto cam filmi vardı ancak üst kısımlaradaki açlılır kapanır küçük camlarda cam filmi olmadığından bunlarıda filmle kaplamaya karar verdim.