celal yalçın
Perihan - Celal Yalçın
Ynt: Motokaravanımın Yapım Aşamaları; Isuzu M23 Motokaravan - Celal Yalçın
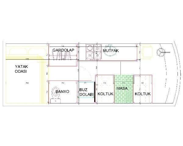
Karavanımın bilgisayarda birebir ölçülerle yaplmış planı. Ustadan milimetrik iş alabilmenin gerekliliği.
Karavanımın bilgisayarda birebir ölçülerle yaplmış planı. Ustadan milimetrik iş alabilmenin gerekliliği.

